Este site utiliza cookies para permitir a mudança de língua e o armazenamento dos seus imóveis favoritos. Ao utilizar este site, concorda que o mesmo utilize cookies.

Magnífica Moradia T3 + 1 c/Piscina - Stª. Maria da Feira

Preço sob consulta




Referência

cf0433-ESQ

Natureza

Venda

Tipo de Imóvel

Moradia

Subtipo de Imóvel

Moradia Isolada

Tipologia

T4

Estado

Novo

Certificado energético

A+

Ano

2024


Distrito

Aveiro

Concelho

Santa Maria da Feira

Freguesia

Código Postal

4520


Área Útil

226.37 m2

Área Bruta

362 m2

Área de Terreno

771 m2





Contactar Imobiliária

*Preenchimento obrigatório
Ao clicar em 'Enviar', declara que aceita a nossa Política de Privacidade.

Magnífica casa adosada T3+1 en Travanca, Santa Maria da Fei

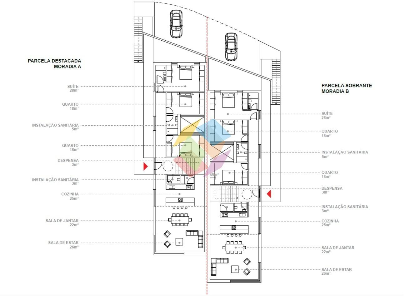
Magnificent T3+1 semi-detached house in Travanca, Santa Maria da Feira, located in a quiet residential area, close to shopping areas and various services, with good road access and 1 minute from access to the A1 and A29...Property consisting of 2 floors (Ground floor and 1st Floor):..Ground Floor:.- Garage with 45 m2,.- Laundry,.- Technical area,.- Inner patio/garden with access through the office and laundry room,.- Desk...1st Floor:.- Kitchen and living room in Open Space system.- Storage/Pantry,.- Service bathroom,.- 2 bedrooms with wardrobes,.- Complete bathroom,.- Suite bedroom with wardrobes and complete bathroom...Outside we have an excellent garden patio area...Characteristics:.- Air conditioning,.- Solar panel,.- Thermal cut frames with double thermal break glass,.- Electric blinds,.- House covered with an 8 cm hood,.- Automatic gates...The property stands out for its excellent sun exposure, interior brightness, generous areas, location close to Stª. Maria da Feira and the main road accesses, modern architecture, construction quality, high quality materials and finishes...*** As the property is still at the beginning of construction, we will later include more photos of the progress both inside and outside...Don't miss this Opportunity, your DREAM is here, come visit!..We handle the entire financing process and accompany the client until the act of writing...Whatever your needs in the real estate market, Cubic Imobiliária is here to help, allow us to be your reliable partner in achieving your real estate goals...For more information, we are always at your disposal...Book your visit!..Carlos Fonseca - 967 389 671..AMI 10354

Magnífica Moradia T3+1 geminada em Travanca, Santa Maria da Feira, localizada em zona habitacional calma, próxima das zonas comerciais e de diversos serviços, com bons acessos rodoviários e a 1 minuto dos acessos a A1 e A29...Imóvel composto por 2 pisos (Rés-do-chão e 1º Piso):..Rés-do-Chão:.- Garagem com 45 m2,.- Lavandaria,.- Área técnica,.- Pátio/jardim interior com acesso através do escritório e lavandaria,.- Escritório...1º Piso:.- Cozinha e sala em sistema de Open Space.- Arrumos/Despensa,.- Casa de banho de serviço,.- 2 quartos com roupeiros,.- Casa de banho completa,.- Quarto suíte com roupeiros e casa de banho completa...No exterior temos uma excelente área de logradouro de jardim e piscina...Características:.- Ar condicionado,.- Painel solar,.- Caixilharia de corte térmico com vidro duplo de rutura térmica,.- Estores elétricos,.- Moradia revestida a capoto de 8 cm,.- Portões automáticos...O imóvel destaca-se pela excelente exposição solar, luminosidade interior, áreas generosas, localização próxima de Stª. Maria da Feira e dos principais acessos rodoviários, arquitetura moderna, qualidade de construção, materiais e acabamentos de elevada qualidade...** Caso não pretenda piscina, será deduzido o valor da mesma (€ 25.000)...*** Dado o imóvel ainda se encontrar em inicio de obra, iremos posteriormente colocar mais fotos da evolução tanto a nível do interior como do exterior...Não perca esta Oportunidade, o seu SONHO está aqui, venha visitar! ..Tratamos de todo o processo de financiamento e acompanhamos o cliente até ao ato da escritura...Seja qual for a sua necessidade no mercado imobiliário, a Cubic Imobiliária está aqui para ajudar, permita-nos ser seu parceiro confiável na realização dos seus objetivos imobiliários...Para mais informações, estaremos sempre ao seu interior dispor...Marque a sua visita!..Carlos Fonseca - 967 389 671..AMI 10354
Geral
GeraisMobilado:Sim
GeraisRés do chão:Sim
GeraisNº de Casas de Banho:4
GeraisLavandaria:Sim
GeraisAdaptado a mobilidade reduzida:Sim
VistasPanorâmicas:Sim
Quarto de BanhoComum:Sim
Quarto de BanhoPróprio:Sim
Ar CondicionadoPré-instalado:Sim
Edificio
EquipamentoGás canalizado:Sim
EquipamentoJardins:Sim
EquipamentoPiscina exterior:Sim
EquipamentoVideo-Porteiro:Sim
ÁguaCompanhia:Sim
GeraisNº de Lugares de Estacionamento:1

Este imóvel não tem áreas definidas.

Imóveis
Semelhantes

Moradia
Venda

Preço sob consulta

Moradia T3 Térrea Geminada de 3 frentes – Tra...

Preço sob consulta

Aveiro / Santa Maria da Feira / Santa Maria da Feira, Travanca, Sanfins e Espargo


Ref: cf0440LT8

Ref: cf0440LT8

101.95 m2

3

2

Sim

Moradia
Venda

Preço sob consulta

Moradias Quintas do Frade - Stª. Maria da Fei...

Preço sob consulta

Aveiro / Santa Maria da Feira / Santa Maria da Feira, Travanca, Sanfins e Espargo


Ref: cf0439BND2

Ref: cf0439BND2

273 m2

3

2

Moradia
Venda

Preço sob consulta

Novidade, Moradias T3 novas Santa Maria da Fe...

Preço sob consulta

Aveiro / Santa Maria da Feira / São João de Ver


Ref: agn77__2_

Ref: agn77__2_

220 m2

3

3